00件
最近見た物件
00件
検討リスト
鹿児島市の不動産|南国殖産株式会社 > (戸建(売買))地域から探す > 鹿児島市 > 魚見町 中古住宅
ぜひ一度見ていただきたい「魚見町 中古住宅」です。太陽光発電システム6.5kw搭載、蓄電池6.5kw搭載のオール電化省エネ住宅。火災に強い省令準耐火構造で火災保険も軽減できます。2台分のカーポートが設置させており、雨の日も安心。全居室収納の3LDK+ウォークインクローゼット付き。内覧をご希望の方は、南国殖産にご連絡ください。











(※元利均等方式 金利5.00%まで ※返済年数5~50年まで入力できます)
(※ボーナスは年2回で計算しています。1000万円まで入力できます)
(※物件購入時、その他諸費用が発生する場合がございます)
| 所在地 | 鹿児島県鹿児島市魚見町 | ||
|---|---|---|---|
| 交通 | |||
| 間取り/詳細 |
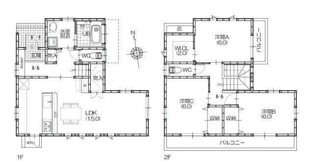
3LDK/ LDK 15.0帖 1室/洋室 6.0帖 3室 LDK15.0帖 洋室6.0帖 洋室6.0帖 洋室6.0帖… |
建物面積(坪数) | 89.42㎡(27.04坪) |
| 価格 | 2,980万円 | ||
| 駐車場/月額料金 | 有/0円 | ||
| 土地の敷金/保証金 | -/- | 借地料/借地期間 | -/- |
| 土地権利 | 所有権 | 土地面積(坪数) | 138.49㎡(41.89坪) |
| 傾斜地部分面積 | - | 路地状敷地 | - |
| 私道負担面積/セットバック | -/無 | 高圧線下面積 | - |
| 地目/地勢 | 宅地/- | 接道状況 | 角地(北 公道 4.0m)(東 公道 4.0m) |
| 建ぺい率/容積率 | 50%/80% | 用途地域 | 第一種低層住居専用 |
| 都市計画 | 市街化区域 | 種別/構造 | 中古一戸建/木造 |
| 階建 | 2階建 | 築年月(築年数) | 2019年 9月 (築6年) |
| 総区画数/販売区画数 | -/- | 向き | 南 |
| 現況 | 居住中 | その他の法令上の制限 | 宅地造成及び特定盛土等規制法/建築基準法第22条指定地域 |
| 取引態様/引渡時期 | 一般媒介/相談 | 建築確認番号 | 第鹿建第1180777号 |
| 物件番号 | 95324475 | 取引条件の有効期限 | 2026年04月17日 |
| 設備条件 |
|
||
| 備考 | 大人数でも不自由なく楽しめる、15帖以上のLDKです。オートバスシステムは自動的に湯を足すタイプもあります。値段がお手ごろな中古戸建てはいかがでしょうか。浴室乾燥機のあるお風呂場は洗濯物を干すときにも便利です。南国殖産までご連絡頂ければ、当社のスタッフが鹿児島市の不動産情報を詳しくご案内させていただきます。 | ||
| 取扱会社 |
|
||
| QRコード |
このQRコードを読み取ることで、スマホでも物件情報を確認できます。 |
||
※地図上に表示される物件の位置は付近住所に所在することを表すものであり、実際の物件所在地とは異なる場合がございます。
魚見町 中古住宅に関するこだわり条件から探す
鹿児島市の町名から探す